Skip to content
HOME
BRANDING
CONSTRUCTION / FABRICATION
ENGINEERING
PUMPS IMAGING
HIGH RISE / POLE ID
NEW QUOTE
CONTACT
Facebook
Twitter
Pinterest
Instagram
Get a Quote
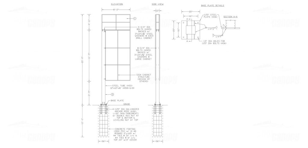
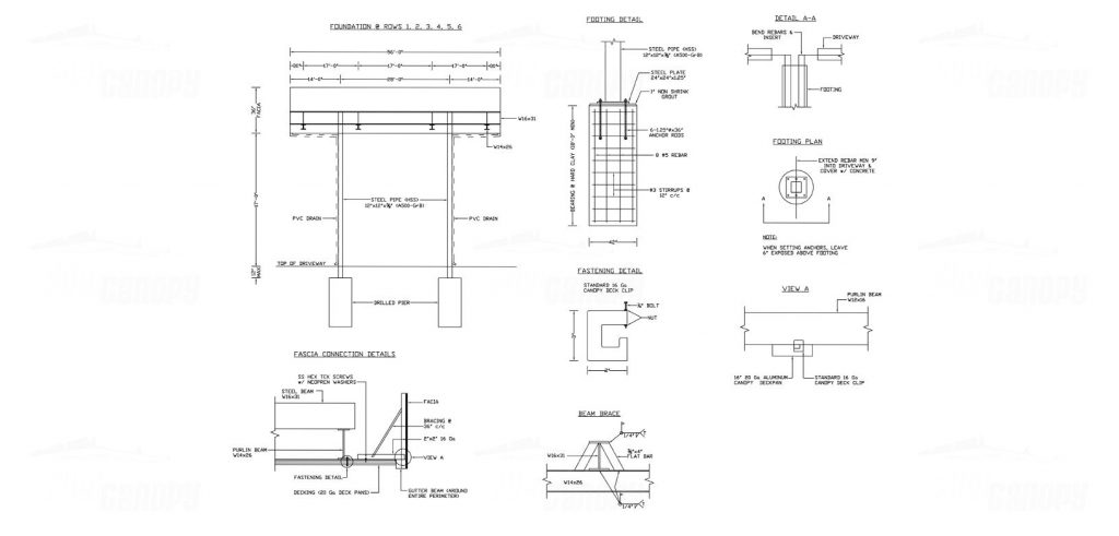
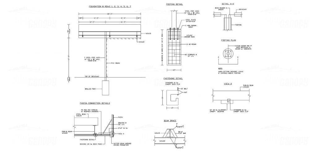
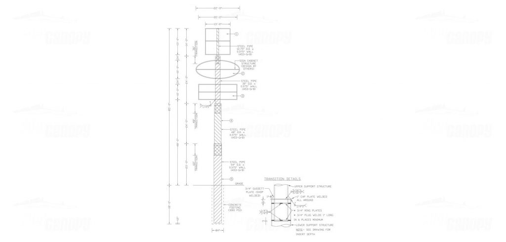
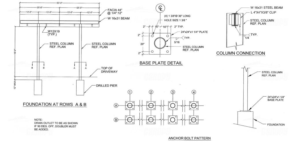
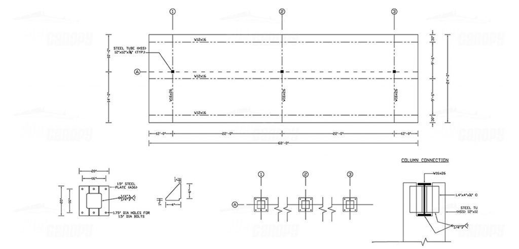
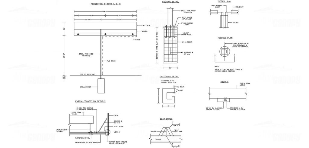
Engineering
fuelcanopyadmin
2019-09-20T10:09:15+00:00
Engineering